
THE IMPORTANCE OF TECHNICAL DRAWINGS
The Importance of Technical Drawings in the Construction and Interior Design Sectors
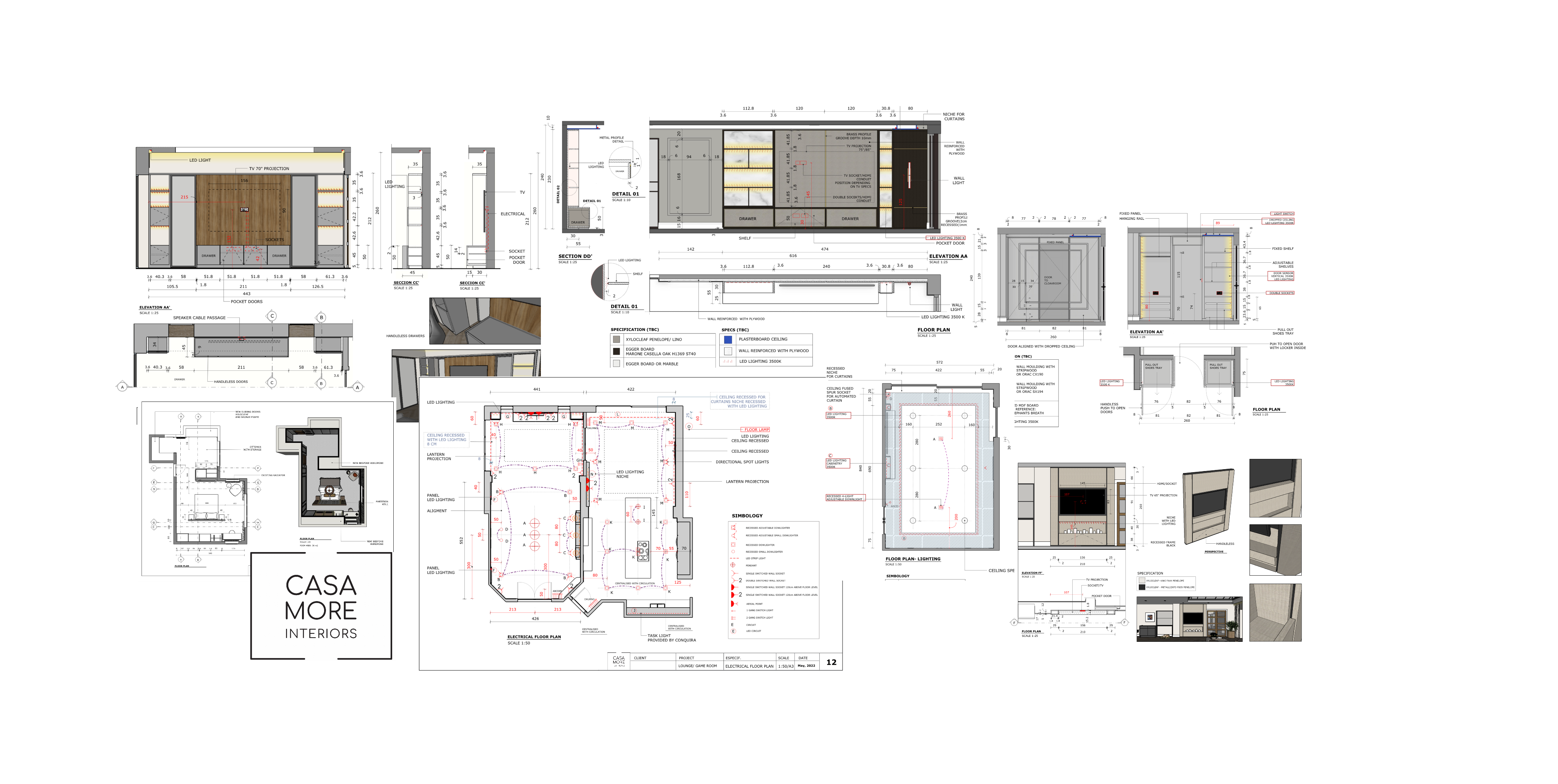
Technical drawings are the foundation of any successful construction or interior design project. They serve as a precise visual representation of the design, ensuring that all elements—from spatial planning to material specifications—are clearly defined before construction begins. In the interior design sector, well-executed technical drawings bring efficiency, accuracy, and cost control to every phase of a project.
One of the key benefits of detailed drawings is the prevention of construction mistakes. Misinterpretations or missing details in a project can lead to costly errors, delays, and rework. By providing accurate measurements, materials, and installation guidelines, technical drawings help contractors and builders execute the design exactly as intended.
Additionally, a well-documented project allows for accurate cost estimation. With clear plans in place, different contractors can provide competitive quotes, making it easier to compare costs and select the best option. This level of precision also enables flexibility—projects can be executed in various locations, with different teams, without the risk of inconsistencies.
Beyond cost savings and efficiency, technical drawings facilitate smooth project coordination. Architects, designers, engineers, and contractors rely on these documents to align their work, ensuring that structural, electrical, plumbing, and aesthetic components are seamlessly integrated.
Ultimately, technical drawings are not just blueprints; they are a project’s roadmap to success. Whether building a new home, renovating a space, or designing a custom interior, investing in high-quality technical drawings is essential for achieving the best results—without unexpected expenses or errors.


Summary of Key Points
- Prevents construction mistakes – Reduces errors and misinterpretations during execution.
- Avoids extra expenses – Minimizes costly corrections and rework.
- Enables accurate cost estimation – Different contractors can provide precise quotes.
- Offers flexibility – Projects can be executed in different locations without inconsistencies.
- Ensures project coordination – Aligns work between designers, engineers, and contractors.
- Improves overall efficiency – Speeds up execution and maintains design integrity.
